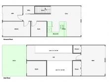
- actively developing a low-cost ISO container housing and community system
- an open community building design project
- utilizing 20' or 40' shipping containers with slight modification to become a weather-tight, earthquake/hurricane proof building unit.
More plans here: here
Advantages of using ISO containers as a building unit:
- Readily availible in most parts of the world, including developing countries.
- Easily transported by land, sea, air... a massive transportation infrastruture is already set-up to move containers
- Shop or field modification as necessary
- Simple installation at location, minumum required: roll-off truck and small lifting machine or dollys
- Many foundation options
- Long life-span with simple maintainence
Many configuration options:
- self-contained units
- grouped units
- bunk houses
- common food/wash/meeting units
- infrastructure units
- large community centers




