Skip to main content
BoxBuilt
Toggle navigation
Plans
In the Wild
Contact
Home
Plans
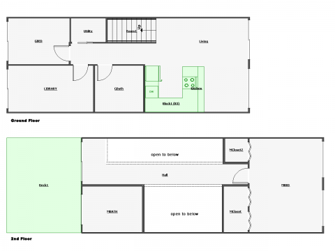
440ISO
440ISO
2-Bed Family Home
Levels:
2
SqFt:
1 280.00
40s:
4
20s:
0